設計 2016.01.14
今年のお正月は例年に比べ暖かく、
少しお正月らしくない気候にも思えましたが、
過ごし易かったですね。
今年は3ヶ所の地元の神社、大山阿夫利神社、平塚八幡宮へ初詣に行き、
3回おみくじを引きました。中吉2回と大吉1回という良さそうな雰囲気の
おみくじでしたが、平塚八幡宮に行った際に厄年早見表というものが
掲示されていて、ふと表を見ると気になる言葉が・・・・
平成元年生まれ「八方塞がり」と書かれているではありませんか!
「八方塞がり」とは何という意味だろうと恐る恐る調べてみると、
どの方角にも障りがあり、なにもできない状態とのこと。
どの方向に事を行っても、不吉な結果が予想される年ということで、
意味を知った瞬間とてもショックでした・・・。
不吉な事が起こらないようお祓いに行こうと計画中です。
新年早々テンションが下がりましたが、早くお祓いに行って
今年も明るく元気に過ごしたいと思います!
そんなコーディーネータの鈴木を今年も宜しくお願い致します。
さて、新年のブログ始めは、去年の11月ごろお引渡しした
平塚市の新築工事K様邸をご紹介致します。
お打合せはおととしの秋ごろから始まり、
じっくり時間をかけてご計画させていただきました。
私は詳細打合せから同席させていただき、
ご契約前の雰囲気や流れなどや
K様が環境配慮型設計にとても興味を持って頂いたことや、
以前から風の流れや日当たりなどを観測してデータに
まとめておられたことなどを設計の中込さんより伺いました。
データをまとめた資料をみせていただき
建物周辺の環境を熟知されていてとても驚きました。
ここまで環境配慮型設計に興味を持っている方の
新築工事に携われ、とても嬉しかったです。
計画としてはK様の生まれ育った家を建て替え、
2階戸建ての新築工事を行いました。

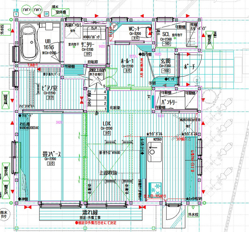
玄関は広さ2.8帖、天井高は2330mm、ホールは2170mmという
コンパクトな空間ですが、数字だけでみると狭く感じますが、
実際は圧迫感もなく、居心地の良い空間となりました。
天井の羽目板(栂パネリング)がアクセントになり、
ベンチも手摺も愛着が湧く玄関ホールとなりました。
造作建具で計画した引き違い戸を開けるとLDKに続きます。
LDKの広さは約11.5帖、少しでも多く採光を取り入れるため、
約2.3帖の吹き抜けを設けました。
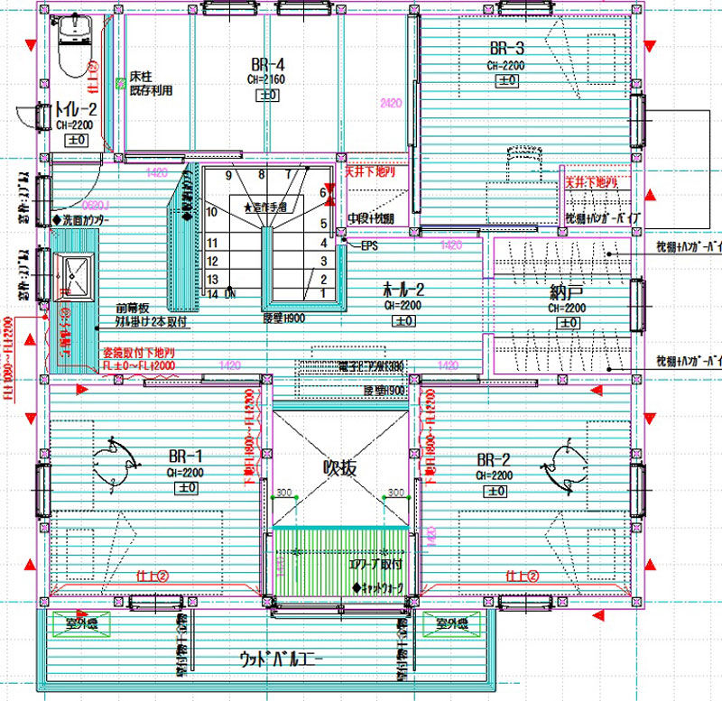
吹き抜けには2階の個室をつなぐキャットウォークがあり、
そこには室内物干し金物を取付け、室内干しのスペースにして
機能性も充実した空間となりました。
大きな窓から入る日差しを利用した
効率の良いの室内干しスペースになりそうですね。
キャットウォークは動線の確保だけでなく、
スノコ状の間から太陽光が差し込むため、
日当たりもしっかり1階へ降り注ぐことができます。
そのため採光の邪魔にはなりません。
こちらのLDKも天井高は2200mmという
一般的な天井高(2400mm)より200mm低いですが、
吹き抜けを計画することにより、
それを感じさせない居心地の良い空間となりました。
吹き抜けは暖房効率が悪くなるのでは?
と思う方もいらっしゃると思いますが、
建物自体断熱性能も格段に上がっているため、
保温力があり、暖房効率については
あまり気にならなくなっております。
吹き抜けを計画する際のポイントとしては、
空気の循環をよくするために、
シーリングファンの取り付けをお勧めしております。
実際の住み心地をK様へ伺ったところ、
リビングにストーブ1台設置するだけで
全体的に空間が暖まるとのことで
吹き抜けのメリットを実感していただけました。
このような暮らしてからのご感想は、
私達にとって嬉しいお言葉でもあり、
ご提案の自信にも繋がっています。
K様邸はまだまだご紹介したいところがたくさんありますので、
次回も続けてご紹介させていただきます。お楽しみに。
鈴木
CATEGORY
ARCHIVE