fbpx

新築・注文住宅・リフォーム・リノベーションは

湘南・神奈川・横浜の優建築工房

新築・リフォームは湘南・神奈川・横浜の優建築工房 優しい暮らし

スタッフブログ

平野 聡史 2017.03.06

日差しについて考える

こんにちは、設計の平野です。
今年は春三番なんて言われるくらい
強風が吹く日が続きました。
少しづつ暖かくなってきて、
春はもうすぐそこ!という感じがしますね。
とは言え、
陽が出ていないと風が肌寒いので、
太陽の日差しは「ありがたや~~」と
拝みたくなりますね。

さて、
現在計画中段階の新築物件にて。

大枠のプランニング(間取り)がまとまり、
高さ関係を含めた空間構成や
建物内の配管経路と構造の取り合い、
窓の取り方などについての詳細検討を
行っている段階に入りました。

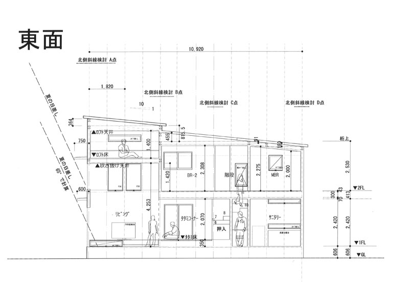
1hrn170305ritsumenminami

前回のブログの物件では
北側斜線制限と攻防しましたが、
今回は「道路斜線制限」が厳しそうです。

が、なんとかかわしつつ、
ロフト空間などがご要望に沿って実現できそう。

立面、空間と一緒に窓も考えていきます。

敷地は、東側が4M近く下がった崖のため
遠くまで見渡すことが出来、
南東は家があるが1Mほど下がっており、
離隔も取れているので、
特に午前中は問題なく日照を得られることが
予想できました。

逆に、南東のリビングには、吹き抜けにFIX窓、
お庭とのつながりには掃出し窓を計画しているので、
夏場の日差しの遮蔽を検討する必要がありました。

2hrn070305ritsumenhigashi

図面上ではこのような検討をしているところです。

6月~8月の、
夏の10時頃~お昼過ぎくらいを想定して、
太陽高度が65°以上ある時は、
ほぼ遮れるように庇を設置した方が
良いのではないかと。

本当にこれが正しい考え方なのかどうか?

これまでの経験に当てはめたり、
仲間の意見を聞いたりしながら、
悩みます。

図面は二次元で表現されますが、
実際の建物と太陽の動きは、三次元です。
その予測はなかなか難しい。

検討手段のひとつとして、
新築物件では、プレゼン~打合せの段階で
模型を作ります。

白いスチレンボードを使って組み立てた、
いわゆる「スタディ模型」というやつです。

立体になることで、
図面だけではわかりづらかったことに気づいたり、
お施主さまに外観のイメージをつかんで頂くには
一番わかりやすい方法になります。

今回の物件もスタッフに1/50スケールで
スタディ模型をつくってもらいました。

そこで、晴れた日の午前中、
わが社の設計部と工事部をつなぐ
通路のデッキの一部分に陽がさしていたので、
そこに模型を置いてみることにしました。

3hrn170305hirano

実際の方角と図面の角度を、
コンパスを見ながら合わせて
その上に模型を置いてみます。

置いてみる
4hrn170305oitemiru

南面
5hrn170305minamimen

庇あり
6hrn170305hisashiari

う~ん、これはわかりやすい!
室内でライトを照らす方法もありますが、
やっぱり リアルな太陽光が一番わかりやすいね!
と、友坂さん&上田さんと一緒に
やんややんやとやっておりました。

撮影時間は3月頭の10時半頃、インターネットで
太陽高度を調べると45°くらいでした。

写真を見てわかるように、庇の影が窓の半分より
上くらいまでの日差しを遮っています。

これより太陽が高い時期はもっと遮り、
低い時期はもっと奥まで陽が入ります。

次に、庇を外してみることにしてみました。

庇なし
7hrn170305hisashinashi

明らかに庇があるときよりも直射が奥まで入っていることがわかります。

特に吹き抜け上の窓(南面・東面)から、
奥のタタミコーナーまで日差しが入って来ています。

20分程時間がずれたので、全体の影の入り方が
少々違いますが… 窓面にはほぼ同じ条件。

なるほど、これは勉強になる。
文字通り「スタディ模型」の本領発揮ではないでしょうか。

それはそれで良い発見でしたが、

難しいところは、
「結局いつまで入れて、いつから遮ったら快適なの??」
というのが問題なのです。

出来ることなら一年通して、暑さ寒さをリアルタイムに
体感しつつ模型を見ながら、
「今の時期、日差し欲しいですね」
「今の時期、暑いから遮りたいですね」で、
「この窓にはこの位の庇がいいですね」
「この窓には庇じゃ西日に対応できないので、よしずにしましょう」
とやれば間違いないのでしょうが、
そんなにのんびりやらせて頂けるわけがありません(笑)
(勉強用としてやっても良いかもしれませんが!)

ですので実際の設計では、様々な方法で
予測をしながら計画をする必要があります。

「気持ちの良い日差し」とは?

その土地の周辺条件や、
建物の間取り、暖房機器などの設備によっても
考え方が変わってくるでしょうし、
お住まいになる方の好みや体感の違いもあります。

きっと、解はひとつだけではないのだと思いますが、
その土地、その家、そこに住まう人にとって
より良いご提案が出来るように、智恵を絞って
まいりたいと思います。

それではまた次回。

平野

CATEGORY

カテゴリー

PAST BLOG

旧ブログはこちら

ARCHIVE

アーカイブ
優建築工房の季刊誌
page top

page top

page top